Apartamento de un dormitorio en venta en Cordón - 1006

Mercedes y Minas - u1006

U$S 125.969

Apartamento

Venta

Cordon

1 dormitorio

1 Baños

49 Mts

Descripción

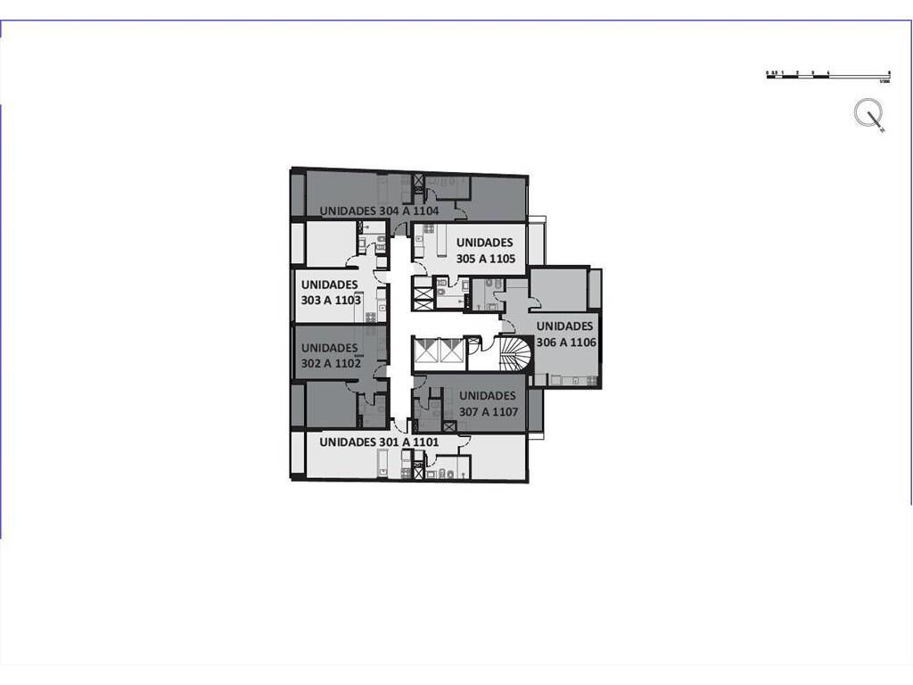
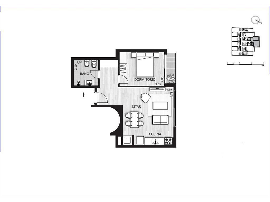
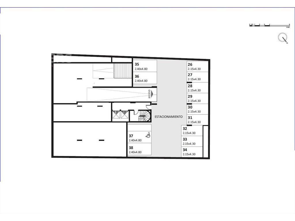
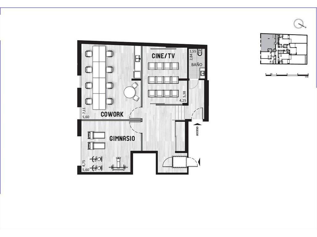
Edificio en construcción a estrenar en abril de 2027. Apartamento de 1 dormitorio en venta en Cordón. Piso 10 al contrafrente con orientación norte. Living comedor con terraza, cocina integrada con placard inferior, 1 dormitorio con cortina de enrollar, 1 baño completo. Cuenta con previsión para aire acondicionado. El edificio cuenta con los siguientes amenities: bicicletero, gimnasio, co work, microcine y 2 parrilleros exteriores con vista panoramica. Garaje opcional desde U$S 15.450, no incluido en el precio. Cuenta con los beneficios de la Ley 18.795 de vivienda promovida. Forma de pago: 10% reserva 50% al compromiso 30% durante obra 10% a la ocupación Gastos de ocupación 4.5% u 1006 REF. AB Soho Mercedes Referencia: ABU62771 AP6888038  Honorarios por intermediación: 3% + IVA para operaciones de compra. Un mes de alquiler + IVA para operaciones de alquiler. La información contenida en el presente documento ha sido proporcionada íntegramente por el/los propietarios del inmueble. Arquibrokers Servicios Inmobiliarios no se responsabiliza por las diferencias ni las modificaciones que puedan surgir a partir de este documento.

Caracteristicas generales

  • Estado: En construcción
  • Sup. construida: 47m²
  • 1 Baño
  • Kitchenette
  • Aire aconodicionado
  • Cantidad de autos 1

Ambientes

  • Living comedor
  • Comedor
  • Terraza principal

Servicios

  • Luz eléctrica
  • Agua corriente

Garantias de alquiler

  • Otro: Consultar

Comodidades del edificio

  • Gimnasio
  • Ascensor
inmobiliaria
Ver avisos de Inmobiliaria ARQUIBROKERS

Últimas consultas

¡Sé el primero en consultar!

DENUNCIAR AVISO

Avisos relacionados

Avisos relacionados

aviso relacionado

Apartamento de un dormitorio en venta en Cordón Sur - 1003

U$S 146.751

aviso relacionado

Apartamento de un dormitorio en venta en Cordón - 101

U$S 149.350

aviso relacionado

Venta Apartamento 1 dormitorio en Cordón

U$S 143.450

Consultar Llamar
Compartir WhatsApp