Apartamento de un dormitorio en venta en Cordón - 102

Mercedes y Minas - u102

U$S 132.870

Apartamento

Venta

Cordon

1 dormitorio

1 Baños

103 Mts

Descripción

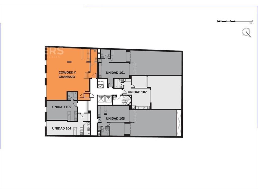
Edificio en construcción a estrenar en abril de 2027. Apartamento de 1 dormitorio en venta en Cordón. Piso 1 al contrafrente con orientación norte. Living comedor con cocina integrada con placard inferior, 1 dormitorio con cortina de enrollar, 1 baño completo. patio de 57m2. Cuenta con previsión para aire acondicionado. El edificio cuenta con los siguientes amenities: bicicletero, gimnasio, co work, microcine y 2 parrilleros exteriores con vista panoramica. Garaje opcional desde U$S 15.450, no incluido en el precio. Cuenta con los beneficios de la Ley 18.795 de vivienda promovida. Forma de pago: 10% reserva 50% al compromiso 30% durante obra 10% a la ocupación Gastos de ocupación 4.5% u 102 Soho Mercedes Referencia: ABU62771 AP6884958 Honorarios por intermediación: 3% + IVA para operaciones de compra. Un mes de alquiler + IVA para operaciones de alquiler. La información contenida en el presente documento ha sido proporcionada íntegramente por el/los propietarios del inmueble. Arquibrokers Servicios Inmobiliarios no se responsabiliza por las diferencias ni las modificaciones que puedan surgir a partir de este documento. Arquibrokers Servicios Inmobiliarios

Caracteristicas generales

  • Estado: En construcción
  • Sup. construida: 46m²
  • 1 Baño
  • Kitchenette
  • Cantidad de autos 1

Ambientes

  • Living comedor
  • Comedor
  • Patio

Garantias de alquiler

  • Otro: Consultar

Comodidades del edificio

  • Gimnasio
  • Ascensor
inmobiliaria
Ver avisos de Inmobiliaria ARQUIBROKERS

Últimas consultas

¡Sé el primero en consultar!

DENUNCIAR AVISO

Avisos relacionados

Avisos relacionados

aviso relacionado

VENTA APARTAMENTO 1 DORMITORIO CORDÓN FERNANDEZ CRESPO Y UR

U$S 130.000

aviso relacionado

Venta de apartamento de 1 dormitorio en Miraf Arenal, Cordó

U$S 155.000

aviso relacionado

VENDE GRG PROPIEDADES

U$S 145.000

Consultar Llamar
Compartir WhatsApp