Apartamento monoambiente en venta en Prado - 101

Sitio Grande y Cuaró - u101

U$S 97.479

Apartamento

Venta

Prado

Monoambiente

1 Baños

37 Mts

Descripción

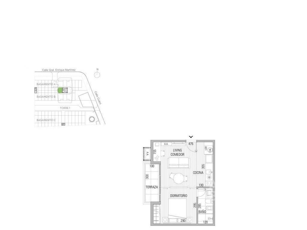
Edificio en construcción a estrenar en diciembre de 2027. Apartamento monoambiente en venta en Prado. Piso 1 al contrafrente con orientación oeste. Monoambiente con cocina integrada con placares bajo y sobre mesada, campana y previsión para conexión de lavarropas, 1 baño. Cuenta con aire acondicionado y persianas. Garaje opcional no incluido en el precio. El edificio cuenta con: previsión portería virtual en hall de acceso a la torre, gimnasio con equipamiento y smart TV, sala de juegos, barbacoa con cowork, baños con accesibilidad universal, lavandería, parque infantil, huerta, recorrido peatonal exterior con diseño de paisaje e iluminación decorativa, terraza exterior junto al gimnasio para práctica de yoga. Formas de Pago: Contado 80% Boleto de compra 20% Contra entrega Plazo de Obra: 30% Boleto de compra 60% Plazo de obra 10% Contra entrega Gastos de ocupación 4% Cuenta con los beneficios de la Ley de vivienda de interés social. Acepta financiación bancaria. u 101 Ref. CM Nostrum Garden Referencia: ABU59363 AP6463865 Honorarios por intermediación: 3% + IVA para operaciones de compra. Un mes de alquiler + IVA para operaciones de alquiler. La información contenida en el presente documento ha sido proporcionada íntegramente por el/los propietarios del inmueble. Arquibrokers Servicios Inmobiliarios no se responsabiliza por las diferencias ni las modificaciones que puedan surgir a partir de este documento.

Caracteristicas generales

  • Estado: En construcción
  • Sup. construida: 33m²
  • 1 Baño
  • Kitchenette
  • Aire aconodicionado
  • Cantidad de autos 1

Ambientes

  • Living
  • Terraza principal

Servicios

  • Luz eléctrica
  • Agua corriente

Garantias de alquiler

  • Otro: Consultar

Comodidades del edificio

  • Gimnasio
  • Ascensor
inmobiliaria
Ver avisos de Inmobiliaria ARQUIBROKERS

Últimas consultas

¡Sé el primero en consultar!

DENUNCIAR AVISO

Avisos relacionados

Avisos relacionados

aviso relacionado

Apartamento monoambiente en venta en Prado - 405

U$S 98.000

aviso relacionado

Venta de Monoambiente en Prado

U$S 101.000

aviso relacionado

VENTA DE MONOAMBIENTE EN PRADO ESTRENA JUNIO 2026

U$S 96.030

Consultar Llamar
Compartir WhatsApp