Apartamento monoambiente en venta en Prado - 201

Sitio Grande y Cuaró - u201

U$S 99.622

Apartamento

Venta

Prado

Monoambiente

1 Baños

37 Mts

Descripción

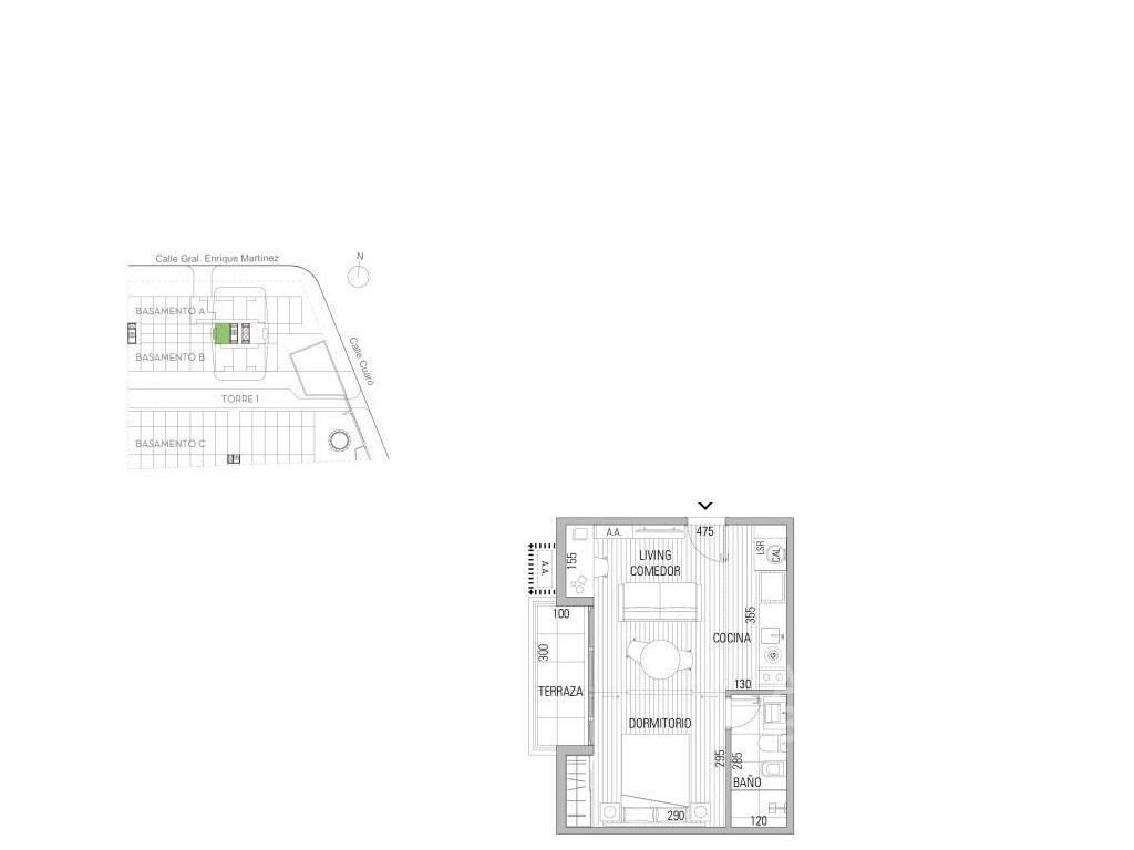
Edificio en construcción a estrenar en diciembre de 2027. Apartamento monoambiente en venta en Prado. Piso 2 al contrafrente con orientación oeste. Monoambiente con cocina integrada con placares bajo y sobre mesada, campana y previsión para conexión de lavarropas, 1 baño. Cuenta con aire acondicionado y persianas. Garaje opcional no incluido en el precio. El edificio cuenta con: previsión portería virtual en hall de acceso a la torre, gimnasio con equipamiento y smart TV, sala de juegos, barbacoa con cowork, baños con accesibilidad universal, lavandería, parque infantil, huerta, recorrido peatonal exterior con diseño de paisaje e iluminación decorativa, terraza exterior junto al gimnasio para práctica de yoga. Formas de Pago: Contado 80% Boleto de compra 20% Contra entrega Plazo de Obra: 30% Boleto de compra 60% Plazo de obra 10% Contra entrega Gastos de ocupación 4% Cuenta con los beneficios de la Ley de vivienda de interés social. Acepta financiación bancaria. u 201 Ref. CM Nostrum Garden Referencia: ABU59363 AP6463966 Honorarios por intermediación: 3% + IVA para operaciones de compra. Un mes de alquiler + IVA para operaciones de alquiler. La información contenida en el presente documento ha sido proporcionada íntegramente por el/los propietarios del inmueble. Arquibrokers Servicios Inmobiliarios no se responsabiliza por las diferencias ni las modificaciones que puedan surgir a partir de este documento.

Caracteristicas generales

  • Estado: En construcción
  • Sup. construida: 33m²
  • 1 Baño
  • Kitchenette
  • Aire aconodicionado
  • Cantidad de autos 1

Ambientes

  • Living
  • Terraza principal

Servicios

  • Luz eléctrica
  • Agua corriente

Garantias de alquiler

  • Otro: Consultar

Comodidades del edificio

  • Gimnasio
  • Ascensor
inmobiliaria
Ver avisos de Inmobiliaria ARQUIBROKERS

Últimas consultas

¡Sé el primero en consultar!

DENUNCIAR AVISO

Avisos relacionados

Avisos relacionados

aviso relacionado

Venta De Apartamento Monoambiente En El Prado Con Terraza D

U$S 98.000

aviso relacionado

Venta De Apartamento Monoambiente Con Terraza Al Frente En

U$S 98.000

aviso relacionado

Venta de Monoambiente en Prado

U$S 101.000

Consultar Llamar
Compartir WhatsApp