VENTA - CASA A RECICLAR - 3 DORMITORIOS

Marsella 2800 y .

U$S 79.000

Casa

Venta

Reducto

3 dormitorios

1 Baños

83 Mts

Descripción


Anuncio provisto por RE/MAX 360
Cada oficina es de propiedad y gestión independiente.

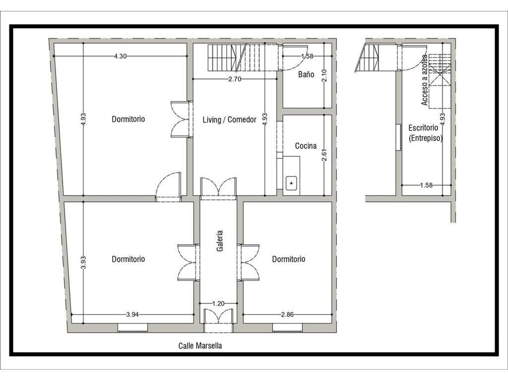
Se vende casa en padrón único para reciclar, ubicada en el barrio Reducto, con excelente acceso a la Av. Gral. San Martín y la Av. Gral. J. Garibaldi. Esta sólida construcción de 93 m², orientada al este, ofrece un gran potencial para reformas. Consta de dos dormitorios al frente, ubicados junto al acceso principal, y un distribuidor central que conecta con un tercer dormitorio, baño y cocina. Además, cuenta con un amplio altillo y acceso a una azotea transitable, lo que amplía aún más las posibilidades de desarrollo. Una excelente oportunidad para quienes buscan transformar una propiedad con gran potencial.

Para más información, contáctese con:
RE/MAX 360 al (92) 24108106

Código de la propiedad: MLS ID # 940080059-20

Toda la información y medidas provista por el Agente Inmobiliario son aproximadas y podrán ratificarse con la documentación pertinente.

Caracteristicas generales

  • Año: 1897
  • Padrón: Unico
  • Estado: Impecable
  • Sup. construida: 83m²
  • 1 Baño
  • Cocina

Garantias de alquiler

  • Otro: Consultar

Información comercial

  • Acepta prestamo bancario

Últimas consultas

¡Sé el primero en consultar!

DENUNCIAR AVISO

Avisos relacionados

Avisos relacionados

aviso relacionado

Venta de casa PH de 3 dormitorios en Reducto. Guadalupe

U$S 89.500

Consultar Llamar
Compartir WhatsApp