Venta Casa Lagomar dos dormitorios

Lagomar norte, en excelente ubicación y entorno

U$S 190.000

Casa

Venta

Lagomar

2 dormitorios

1 Baños

62 Mts

Descripción

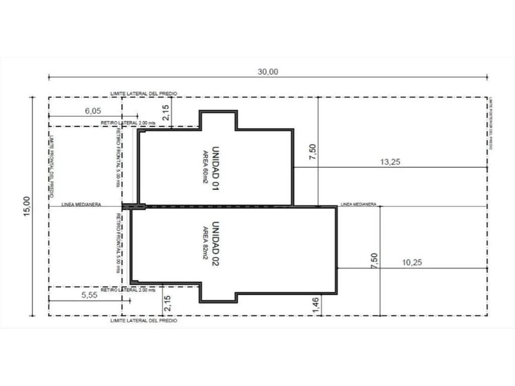
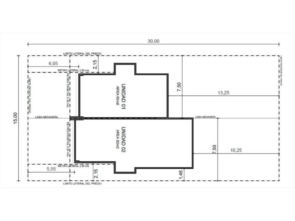
Casa a estrenar, desarrollada en una planta, ubicada en un entorno tranquilo y con buen acceso. La propiedad cuenta con dos dormitorios, living comedor con estufa a leña de alto rendimiento, cocina integrada y baño completo. El terreno tiene una superficie total de 225 m², con 62 m² construidos. Jardín al frente, fondo con parrillero. Excelentes terminaciones con aberturas de aluminio y vidrios dobles (DVH). Aire acondicionado en living e instalación pronta en dormitorios. Cocina con anafe instalado.  Rejas en aberturas, en frente de la casa y portón automático. Ideal para quienes buscan una vivienda funcional, luminosa y con buen diseño. Ocupación prevista en noviembre 2025. Proyecto N° 1704 Promovido por al Agencia Nacional de Vivienda (MVOT) Ley 18.795 de Inversión Privada en viviendas de interés social. CHO7067453

Caracteristicas generales

  • Estado: Estrenar
  • Pisos del edificio: 1
  • Sup. construida: 62m²
  • 1 Baño
  • Cocina
  • Cantidad de autos 1

Ambientes

  • Living
  • Living comedor
  • Comedor
  • Barbacoa
  • Patio
  • Jardín

Comodidades

  • Parrillero

Servicios

  • Luz eléctrica
  • Agua corriente

Garantias de alquiler

  • Otro: Consultar

Últimas consultas

¡Sé el primero en consultar!

DENUNCIAR AVISO

Avisos relacionados

Avisos relacionados

aviso relacionado

Venta casa Lagomar norte dos dormitorios

U$S 165.000

aviso relacionado

Venta – Casa PH en Lagomar Sur | 2 dorm + cochera

U$S 220.000

Consultar Llamar
Compartir