Venta de cochera a metros de la ORT, Pocitos.

Doctor Enrique Muñoz 900 y .

U$S 30.000

Garage

Venta

Pocitos

9 Mts

Descripción


Anuncio provisto por RE/MAX Focus
Cada oficina es de propiedad y gestión independiente.

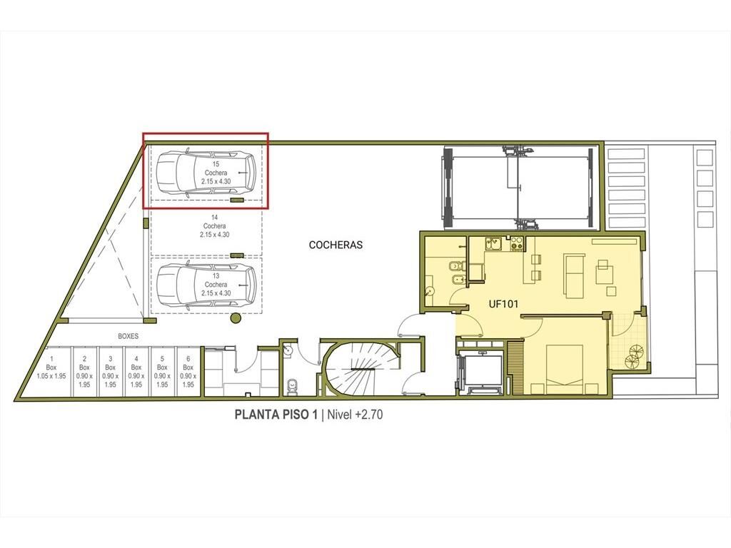
Venta de cochera en un punto de gran demanda en el barrio de Pocitos.  Ubicado en el edificio Yass Pocitos sobre la calle Enrique Muñoz. Zona de colegios y Universidades, con alta demanda de estacionamientos. Cochera ubicada en el primer piso, de muy fácil acceso. El acceso a la misma es través del portón exterior del edificio y cuenta con un ascensor montacargas que conecta con los distintos niveles de estacionamiento. Esta unidad de cochera se encuentra de frente saliendo del ascensor. Dimensiones: 2.15 x 4.30m Gastos comunes $ 1526 Tributos domiciliarios bimensuales: $ 1558 Contribución anual $1500 Consulte por bauleras disponibles.

Para más información, contáctese con:
RE/MAX Focus al 26 242323

Código de la propiedad: MLS ID # 940051237-24

Toda la información y medidas provista por el Agente Inmobiliario son aproximadas y podrán ratificarse con la documentación pertinente.

Caracteristicas generales

  • Estado: Impecable
  • S
  • Tipo Garage: Fijo

Garantias de alquiler

  • Otro: Consultar

Últimas consultas

¡Sé el primero en consultar!

DENUNCIAR AVISO

Avisos relacionados

Avisos relacionados

aviso relacionado

Garage en pocitos

U$S 29.000

aviso relacionado

En venta/ Garage independiente en edificio/ Pocitos/ 17m2

U$S 27.999

aviso relacionado

Garaje / Cochera Venta en Pocitos

U$S 25.000

Consultar Llamar
Compartir WhatsApp