Venta de cochera a metros de la ORT, Pocitos.

Doctor Enrique Muñoz 900 y .

U$S 30.000

Garage

Alquiler

Pocitos

9 Mts

Logo Porto Seguro
Tramitala en el día.

Cotizá la garantía de esta propiedad.

$ 24.273 (PTF $ 24.273)
Ingresos Necesarios $ 103.333

La composición de los ingresos la pueden integrar hasta 5 personas físicas.

Porto Asistencia Hogar

Sin costo para el inquilino


INFORMATE MÁS

Por consultas comunicate con Porto Seguro al Centro de Atención Telefónica 2709 33 33 o por WhatsApp al mismo número. Sujeto a aceptación de la garantía por parte del propietario y/o Inmobiliaria. La cotización se expresa en base al precio del alquiler publicado.

Descripción


Anuncio provisto por RE/MAX Focus
Cada oficina es de propiedad y gestión independiente.

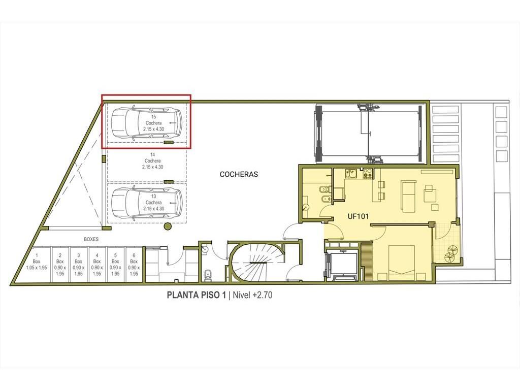
Venta de cochera en un punto de gran demanda en el barrio de Pocitos.  Ubicado en el edificio Yass Pocitos sobre la calle Enrique Muñoz. Zona de colegios y Universidades, con alta demanda de estacionamientos. Cochera ubicada en el primer piso, de muy fácil acceso. El acceso a la misma es través del portón exterior del edificio y cuenta con un ascensor montacargas que conecta con los distintos niveles de estacionamiento. Esta unidad de cochera se encuentra de frente saliendo del ascensor. Dimensiones: 2.15 x 4.30m Gastos comunes $ 1526 Tributos domiciliarios bimensuales: $ 1558 Contribución anual $1500 Consulte por bauleras disponibles.

Para más información, contáctese con:
RE/MAX Focus al 26 242323

Código de la propiedad: MLS ID # 940051237-24

Toda la información y medidas provista por el Agente Inmobiliario son aproximadas y podrán ratificarse con la documentación pertinente.

Caracteristicas generales

  • Estado: Impecable
  • S
  • Tipo Garage: Fijo

Garantias de alquiler

  • Otro: Consultar

Últimas consultas

¡Sé el primero en consultar!

DENUNCIAR AVISO
Consultar Llamar
Compartir WhatsApp