AVISO DESTACADO

Venta de cochera amplia a metros de ORT, Pocitos.

Doctor Enrique Muñoz 900 y .

U$S 42.000

Garage

Venta

Pocitos

20 Mts

Descripción


Anuncio provisto por RE/MAX Focus
Cada oficina es de propiedad y gestión independiente.

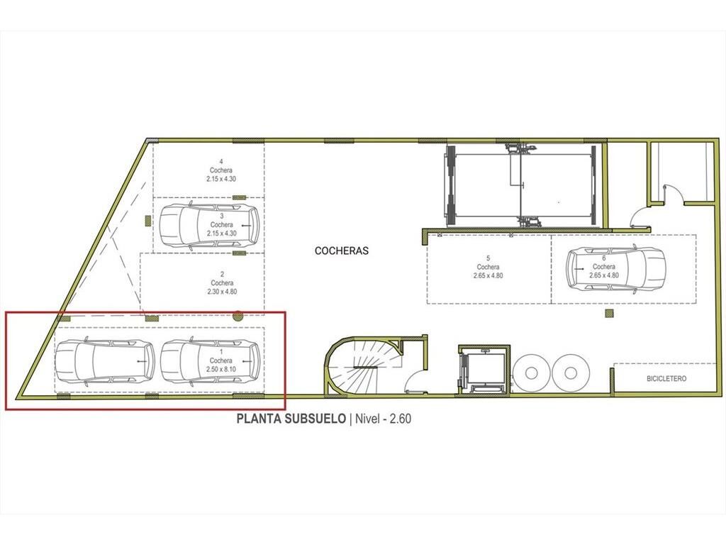
Venta de cochera en un punto de gran demanda en el barrio de Pocitos. Ubicado en el edificio Yass Pocitos sobre la calle Enrique Muñoz. Zona de colegios y Universidades, con alta demanda de estacionamientos. Cochera ubicada en el subsuelo del edificio. El acceso a la misma es través del portón exterior del edificio y cuenta con un ascensor montacargas que conecta con los distintos niveles de estacionamiento. Dimensiones: 2.5 x 8.10 Gastos comunes: $ 3.390 Tributos domiciliarios bimensuales: $ 1.558 Contribución anual: $ 1600 Consulte por bauleras disponibles.

Para más información, contáctese con:
RE/MAX Focus al 26 242323

Código de la propiedad: MLS ID # 940051237-25

Toda la información y medidas provista por el Agente Inmobiliario son aproximadas y podrán ratificarse con la documentación pertinente.

Caracteristicas generales

  • Estado: Impecable
  • S
  • Tipo Garage: Fijo

Garantias de alquiler

  • Otro: Consultar

Últimas consultas

¡Sé el primero en consultar!

DENUNCIAR AVISO

Avisos relacionados

Avisos relacionados

aviso relacionado

Garage en venta en pocitos

U$S 40.000

Consultar Llamar
Compartir WhatsApp