Venta de cochera doble a metros de ORT, Pocitos.

Doctor Enrique Muñoz 900 y .

U$S 54.000

Garage

Venta

Pocitos

18 Mts

Descripción


Anuncio provisto por RE/MAX Focus
Cada oficina es de propiedad y gestión independiente.

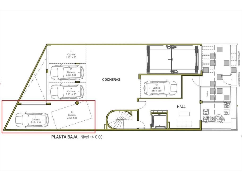
Venta de cochera doble en un punto de gran demanda en el barrio de Pocitos. Ubicado en el edificio Yass Pocitos sobre la calle Enrique Muñoz. Zona de colegios y Universidades, con alta demanda de estacionamientos. Cochera doble ubicada en planta baja. El acceso a la misma es través del portón exterior del edificio y cuenta con un ascensor montacargas que conecta con los distintos niveles de estacionamiento.  Dimensiones 2 cocheras de  2.15 x 4.30m Gastos comunes: $ 3.050 Tributos domiciliarios bimensual: $ 1.558 Contribución anual: $ 1.500 Consulte por bauleras disponibles.

Para más información, contáctese con:
RE/MAX Focus al 26 242323

Código de la propiedad: MLS ID # 940051237-26

Toda la información y medidas provista por el Agente Inmobiliario son aproximadas y podrán ratificarse con la documentación pertinente.

Caracteristicas generales

  • Estado: Impecable
  • S
  • Tipo Garage: Fijo

Garantias de alquiler

  • Otro: Consultar

Últimas consultas

¡Sé el primero en consultar!

DENUNCIAR AVISO

Avisos relacionados

Avisos relacionados

aviso relacionado

Garaje en venta-Pocitos

U$S 55.000

Consultar Llamar
Compartir WhatsApp