VENTA Local Comercial 18 de Julio CORDÓN

18 de Julio 1400 y .

U$S 380.000

Local

Venta

Cordon

2 Baños

150 Mts

Descripción


Anuncio provisto por RE/MAX Focus
Cada oficina es de propiedad y gestión independiente.

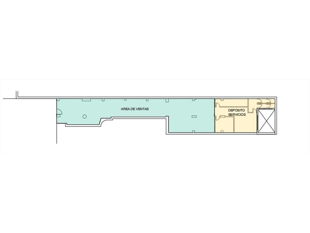
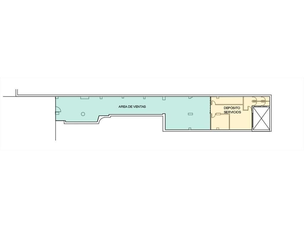
Local comercial en venta sobre Av. 18 de Julio, casi Intendencia. Ubicado en una de las principales arterias de Montevideo, en zona de alto tránsito peatonal y excelente visibilidad. A pasos de paradas de ómnibus y de la Intendencia, lo que garantiza una constante circulación de público. El local se encuentra vacío y pronto para ocupar, ideal para instalar tu negocio de forma inmediata. Cuenta con una vidriera de 4 metros lineales al frente, que ofrece muy buena exposición. Tiene una superficie total de 150 m² en una sola planta, distribuidos en: 100 m² de área de atención al público o ventas. 39 m² de depósito. Patio y servicios. Además, dispone de sistema de extracción de aire habilitado en la sala principal. Los baños y el depósito cuentan con ventilación e iluminación natural hacia el patio. Una excelente oportunidad en el corazón de la ciudad.

Para más información, contáctese con:
RE/MAX Focus al 26 242323

Código de la propiedad: MLS ID # 940051251-36

Toda la información y medidas provista por el Agente Inmobiliario son aproximadas y podrán ratificarse con la documentación pertinente.

Caracteristicas generales

  • Año: 1975
  • Estado: Impecable
  • Sup. construida: 140m²
  • Monoambiente
  • 2 Baños
  • Cocina

Garantias de alquiler

  • Otro: Consultar

Información comercial

  • Acepta prestamo bancario

Consultar al anunciante


Últimas consultas

¡Sé el primero en consultar!

DENUNCIAR AVISO

Avisos relacionados

Avisos relacionados

aviso relacionado

Venta local comercial en 18 de julio con renta - Cordon

U$S 350.000

aviso relacionado

UBICACION d1a. ! ~DEPOSITO~INDUSTRIAL~NUEVO~o550m2 u$400MIL

U$S 320.000

aviso relacionado

UBICACION d1a. ! ~DEPOSITO~INDUSTRIAL~NUEVO~o550m2 u$400MIL

U$S 320.000

Consultar Llamar
Compartir WhatsApp
< !--IronFunnel pixel-- > < noscript>