VENTA TERRENO MALVIN SUR CON PROYECTO APROBADO

Gallinal 1600 y .

U$S 400.000

Terreno

Venta

Malvin

543 Mts

Descripción


Anuncio provisto por RE/MAX 360
Cada oficina es de propiedad y gestión independiente.

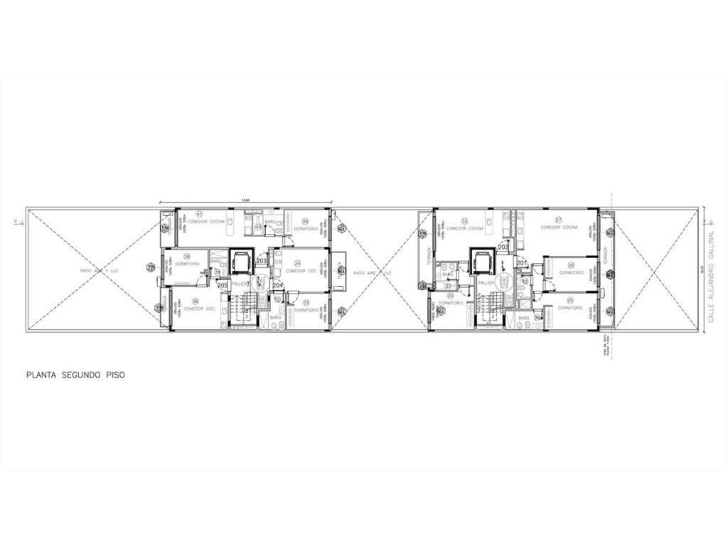
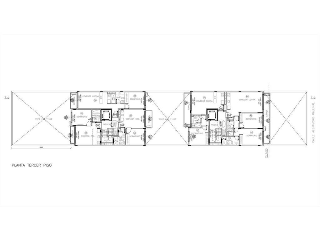
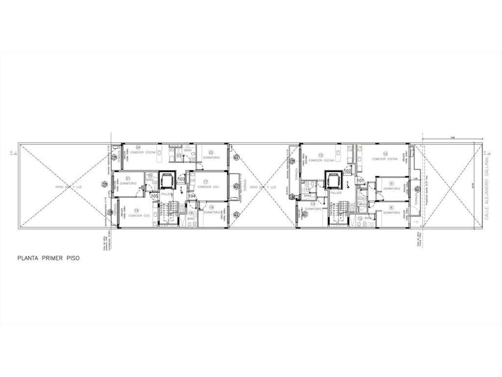
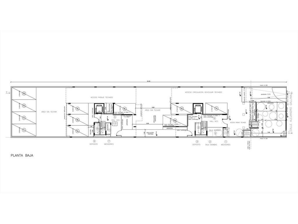
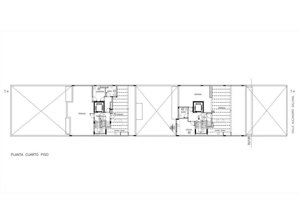
Se vende terreno de 543m2 en Malvín Sur, sobre la calle Alejadro Gallinal, a una cuadra de la Av. Rivera, y 5 de la Rambla, con proyecto de viviendas aprobado. Padrón 163772 El terreno tiene la posibilidad de construir hasta 9 metros de altura (según normativa anterior), y se vende con un proyecto de vivienda APROBADO por Intendencia de Montevideo, que se conforma de dos edificios de tres pisos con un ascensor por edificio. Este proyecto permite la construcción de 15 viviendas, 12 de 1 dormitorio y 3 de 2 dormitorios y 11 lugares de cochera, ideal para inversores interesados en el sector residencial. LA GRAN VENTAJA DE ESTA OPORTUNIDAD ES QUE EL PROYECTO ESTÁ APROBADO CON LA NORMATIVA ANTERIOR, QUE MEJORA LAS CONDICIONES CON RESPECTO A LA CANTIDAD DE METROS CUADRADOS PARA CONSTRUIR. Con la nueva normativa se puede construir hasta 13,50m aplicando retiro bilateral y profundidad de 25m. Tiene aprobación ante SIME para no poner rampa peatonal, y usar una plataforma salvaescalera. La ubicación es inmejorable, a solo unos minutos de la rambla, el molino de Pérez, el club Malvín, y centros comerciales, lo que garantiza alta demanda y rentabilidad. No dejes pasar esta oportunidad para desarrollar un proyecto de alto potencial en una de las áreas más cotizadas de Montevideo. Contáctanos para más detalles.

Para más información, contáctese con:
RE/MAX 360 al (92) 24108106

Código de la propiedad: MLS ID # 940080093-30

Toda la información y medidas provista por el Agente Inmobiliario son aproximadas y podrán ratificarse con la documentación pertinente.

Caracteristicas generales

  • Estado: Impecable
  • Orientación: Norte

Garantias de alquiler

  • Otro: Consultar

Información comercial

  • Acepta prestamo bancario

Últimas consultas

¡Sé el primero en consultar!

DENUNCIAR AVISO

Avisos relacionados

Avisos relacionados

aviso relacionado

Terreno en Venta

U$S 360.000

aviso relacionado

Terreno en venta -Malvin

U$S 350.000

aviso relacionado

TERRENO MALVIN VENTA FRENTE PLAZA ITALIA SHOPPING COLOMBES

U$S 450.000

Consultar Llamar
Compartir WhatsApp